Door Hardware : Selection & Terminology
I have put this page together as a to serve as a guide for the selection of Exterior and Interior door hardware.
Included is an explanation of commonly used terminology along with some diagrams and links which I hope you will find useful. It is my intention that this write up helps to acquaint you with the differences between the various types of available hardware. If you you are preparing an order and should have any questions I will be glad to walk you through the process.


Determination of Handing
Handing is the first item which needs to be determined to order door hardware. It is used to determine hinge placement and jamb configuration and plays an important part in lock selection. It is also an area that can cause some confusion due to the variety of ways our language is used. I prefer to use terminology such as "Left Hung, Open In" for exterior applications as I believe that it is a more accurate way to describe the conditions.
Most Exterior residential doors swing to the inside of the home. Only a small percentage swing out. The accuracy of this description becomes a very important consideration when ordering mortise type lock sets. Per the diagram above there are four possible configurations, each requiring a different lock set. For interior mortise lock applications this number drops to two. Handing is slightly less significant with knob to knob (or tubular) type lock sets as they are generally a universal type application. One exception to this is that certain designs of lever type handles are handed and must be ordered accordingly.
When determining handing of an Interior door you should always look at the door from the hall side. Interior doors typically swing into a room and never into the hall. One exception to this rule is walk-in closet or pantry type doors which should be looked at from the room side. Remember that some lever type handles are handed and care must be taken when ordering these.
A set of floor plans or a accurate sketch showing the door openings can be useful in helping to prevent mistakes.
Selection of Lock Hardware for Exterior applications
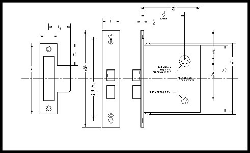
For exterior entry systems there are two basic systems to consider. Mortise lock sets or Knob to Knob lock sets. As you study the products from different manufacturers you will see that there are many variations available for each of these basic types. Pay close attention to the options offered as function and ergonomic features can get confusing. I have included images of each below so that you can become familiar with the difference between these systems.
As you can see the lock & latch components are constructed in an entirely different manner from each other.
The mortise type lock set requires the creation of a large mortise cavity or pocket within the door stile. It also requires several other different sized holes which need to be located very carefully. The knob to knob type set is much less complicated to mount as it only requires a few simple holes to be bored in the door.
A few points which should be part of your consideration as you select a lock is the difference in overall appearance and how they actuate, and the overall ergonomics of each type.
Mortise type sets have a few features that appeal to some homeowners while at the same time may turn others off. I will start by saying that if you want to recreate a totally traditional look then the mortise style is the obvious first choice. This can be seen in the large sculpted handle and the thumb actuated latch release. For most people this combination epitomizes the historic look of these lock sets. It should be noted here that the thumb lever can be a detractor for some people as it may not be a comfortable fit for their hand and may even cause them some discomfort. Some manufacturers offer thumb latch tubular sets as well. Another characteristic which may be of influence is in the manner of how the latch & lock featuresare manipulated.
Most all of us are familiar with this function on the knob to knob style lock set. This becomes a bit more complicated on the mortise style sets and requires careful adjustment procedures. Whether one is superior to the other is something that can only be determined by the individual.
One feature of the mortise style set is that it has a more substantial look and feel than the knob to knob sets.
This carries over into the sound produced when it latch's. I make mention of this aspect as it is unique to the mortise style lock sets.
One other item of potential interest is maintenance and repair. Depending on the quality of the manufacturer and the conditions present around your entry these lock sets may require regular maintenance. Some of the manufacturers have farmed the machining and assembly of their locks out to overseas sources. In the case some of the mortise locks now available they do not seem to have retained the same service life characteristics that the earlier versions were so famous for. In addition and depending on your mechanical skills you may need to have a locksmith perform any required adjustments or maintenance.
The knob to knob style sets also have a set of features associated with them. The first one is simplicity. They are quite easy to install and maintain. Next is a lower cost. They are typically at least $200 less than a mortise type set with similar trim and function. Next is ease of repair. This feature has a great deal of appeal to homeowners that wish to maintain their own hardware. Again a lot depends on the skills of the homeowner but I think it is safe to say that this type of lock set is significantly simpler than a mortise lock.
They are typically smaller and look a little less impressive but some manufacturers have models where this is not so evident. Here again I suppose that your personal preferences will come into play.
Selection of Lock Hardware for Interior applications
For interior doors you again have a choice between mortise type locks and knob to knob or tubular sets as they are some times referred to. For the most part many of the same features and differences exist in the interior versions of these lock types. As far as function goes there are generally two variants: Passage and Privacy. Passage sets offer a latching system while a Privacy set has a locking feature. I have included images of these locks so that you may readily see the differences.
Floating or Loose Tenon Joint
The knob to knob or tubular sets are used far more commonly than the mortise type sets. In all the years I have been building doors I have only fitted mortise locks on a handful of interior doors. Cost again probably plays a big part in this. Also the visual difference between the two is much less noticeable than it is in entry applications. I would have to say that the same set of personal preferences apply to these locks.... mortise type appeals to some customers and the knob to knob type is the right choice for others.
Set Back
While we are talking about lock selection we should probably discuss the term "Set back". This term refers to the distance between the center of the knob, handle or lock cylinder and the outside edge of the door. For most mortise locks used in exterior applications there are two options. These are 2 3/4" or 2 1/2" with the first being the most commonly used version. For knob to knob lock sets the options for "Set back" are commonly 2 3/4" or 2 3/8".
All of the exterior doors that Heart of Oak Workshop produces feature a 5 1/2" wide stile as a standard. This allows a lock set with a 2 3/4" set back to be centered within the door stile for the best overall appearance.
Tubular style interior lock sets have the same "Set back" options and here 2 3/8" is seen quite often as many interior doors have slimmer door stiles. Quite a lot of doors available for interior use have 4 1/2" wide stiles. In some instances certain combinations of lock sets and door stile widths can result in a bad fit. This is particularly true if flipper type handles are combined with very narrow door stiles. You should make sure that your lock selection is pretty well thought out before ordering doors to help avoid this.
Some manufacturers will provide mortise style locks with different set back dimensions from what I have listed. There is always a fairly substantial up charge associated with these non standard sets. And a longer lead time as well.
Hinge Types and Arrangement
There are quite a lot of different hinges types available on the market these days. I have installed many different types and have to say that I actually prefer a good quality anodized steel hinge without bearings as the best all around performer. My standard has been an oil rubbed bronze finish Hager hinge for more years than I care to think about. I have tried others but have always returned to these as they have been generally excellent performers where others have not. They are, by the way quite inexpensive compared to some of the others and this cost savings is something I am able to pass on to my customers. I will be happy to furnish other types of hinges and in different trim and/or finishes if requested.
Standard hinge arrangement on our doors is as follows:
Exterior Doors : 3-0 to 3-6 x 6-8 get 4 - 4" x 4" heavy duty oil rubbed bronze finish hinges
3-0 to 3-6 x 7-0 get 4 - 4" x 4" " " " " " " " "
All doors larger than this get 4 - 4 1/2" x 4 1/2" extra HD oil rubbed bronze finish hinges
Interior Doors : All 6-8 height doors get 3 - 3 1/2" x 3 1/2" heavy duty oil rubbed bronze finish hinges
or 3 - 4" x 4" for extra wide or heavy designs
All 7-0 height doors get 3 - 4" x 4" " " " " " " " "
or 4 - 4" x 4" for extra wide or heavy designs
All 8 -0 height doors get 4 - 4" x 4" heavy duty oil rubbed bronze finish hinges
Heart of Oak Workshop uses these configurations and hinge sizes as a standard. Any planned deviation from these standards should be determined during the placement of an order. We will be happy to upgrade or revise these standards on any specific special order at our cost.
Special Door Hardware Items
There are a number of specialty door hardware items which may be of interest to homeowners. Included are items such as Hold opens, self closing hinges, Observation devices, Speak Easy's, Draw bolts & canes, Door knockers, Mail slots, auxiliary locks and several other such items. Should you wish to incorporate any of these items into your doors this should be discussed during the placement of your order. In general any of these can be accommodated into the design of your doors. There are however a few situations where this may not be practical due to the physical constraints of a given door design. As an example adding a speak easy or a mail slot to certain designs which I offer is not physically possible without dramatically altering the appearance of the door.
Final comments on selection of door
hardware There is a huge range of hardware available to the consumer these days. In some instances the choices are staggering. Your choices should be made carefully. There are some products available which may not stand up to the rigors of daily use. My recommendation is to stick with reputable manufacturers. I have included links to a few below that make Arts & Crafts style hardware and that I have experience with. I am sure that there are others but I can not vouch for their products.
Last year I constructed an entry door for a customer who provided a mortise type lock set that he had ordered from a source unknown to me. When he brought it in to have it installed we were both quite shocked. The visible elements of the set such as the escutcheon and handles were quite nice..... but the mortise lock itself looked as if it was made using stone tools. Due to time constraints he decided to go ahead and use it. Believe me when I say that the workings of this lock were a mess. It took me the better part of 2 hours to get it to operate and there were several sessions of grinding and filing involved. Fortunately this lock matched the pattern of one of the better quality mortise locks so it could be exchanged at a later date. This is a pretty good illustration of the old idiom " Buyer Beware". I mention it to make certain that my customers are well informed and that hopefully they avoid this mistake.
Please allow adequate lead time when ordering your door hardware. Some selections are available and in stock all the time while others require several weeks of lead time. This is particularly true if you are interested in one of the very fine handcrafted sets such as is offered by Craftsmen Hardware. These types of sets often require 6 - 8 weeks to fill an order.
Maintenance of doors and hardware
There is one thing that any homeowner can do to extend the life of an exterior door and it's hardware. It is very simple and does not require special tools or supplies. Keep it clean and apply a coat of paste wax occasionally.
To clean a door use mild detergent and water on a clean cotton rag. Avoid the temptation of using a hose. Never use harsh cleaning agents or solvents as these can damage both the door finish and the hardware finish. Get the rag wet and wring it out so that is damp, not dripping wet. Go over the entire door including the hardware and then wipe it down good with another clean rag and water only. Follow up with a clean dry terry cloth towel and make sure not to leave water droplets.
Once the door is dry a coat of Johnson's Paste Wax should be applied with a clean rag. Let the wax haze over and buff to a deep luster with a clean cotton terry cloth rag. It is as simple as that. You will be surprised at how nice your door and hardware looks and regular treatment like this should extend the life of the finish dramatically. One of my early entry systems went to the east coast. The homeowner has followed this regimen and this entry is on it's 8th winter and still shows no sign of finish failure.
Locking mechanisms should be wiped down with a clean rag and any lubrication or adjustments should be done per the manufacturers instructions. Frequency of cleaning and maintenance is dependent on site conditions and weather but should probably be done at least twice a year. Dry Graphite or graphite based lubricants seem to work best on moving parts.









